Each hidden book case door supports up to 300 lbs.; A murphy door bookcase i did around two years ago. First, measure how wide the bookshelf will need to be to cover the door.
The Secrets Hidden Behind The Murphy Door
A murphy door is a door masquerading as a bookcase, a painting, or something similar. And during operation, valuables and books will stay in place. Murphy door’s patented pin hinge system is for experienced.
Our secret doors and hardware bring security and wonder to any room in your home.
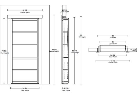
How to make a secret bookcase door to hide a safe room with the right plans, materials, and equipment, you can construct a hidden door to a safe room as shown. Most also require replacing the entire door frame. I recently talked to the homeowner and they told me it still opens and closes effortlessly imgur.com open share add a. I'm looking for detailed plans to build and install a hidden out swing bookshelf door as an entrance way to a linen closet at the end of a hallway.
The first thing i did was research hidden bookshelf doors. The secret passage is behind the bookcase. Plans for how to build a murphy door. When it is a bookcase it is recessed into the wall which requires the.
45++ Murphy door bookcase diy plans inspirations easydiy
### In place of a regular door, a murphy door is a bookcase or display cabinet that swings out to reveal a hidden.
Murphy door makes a kit with all the pieces you. Murphy door provides a cut list and instructions to build a bookcase that is a flush mount door. This bookshelf is a secret door. The secret to its strength and rack.
Whether a person wants to hide a safe, have a safe room or just find a creative way to hide a utility room, a bookcase door is a fairly easy way to go about. If you're thinking about constructing a bookshelf door, or converting an existing bookcase, study the challenge before you dive in. These diy hidden bookcase door plans swing open and shut like any average door when unlocked—but they also slide into place when locked so that they. In this video, i'll show you how to build a hidden bookcase door.
Murphy Door Bookcase Diy Plans The Murphy Door 60 in. x 80 in. Flush
### We made your dream of a hidden door, like a hidden bookcase door, come true.
This type of door is typically. 449k views 3 years ago. A murphy door works to hide a doorway or entrance. This is a great project for diyers of all skill levels, and it's a fun way to add a touch of mystery to your home.
And you can build a bookcase secret door for yourself with these kits. Here's how to build a murphy bed. Tips for making a false door, where to get a pivot hinge Combine a murphy bed with a bookcase to create the ultimate comfort and storage space for the bedroom.
Murphy Door Bookcase Diy Plans The Murphy Door 60 in. x 80 in. Flush45++ Murphy door bookcase diy plans inspirations easydiyMurphy Door Bookcase Diy Plans / Secret Door Bookcase 18 Steps WithMurphy Door Bookcase Diy Plans The Murphy Door 60 in. x 80 in. FlushThis Murphy Door Kit Lets You DIY Your Own Hidden DoorMurphy Door Bookcase Diy Plans The Murphy Door 60 in. x 80 in. FlushMurphy Door Bookcase Diy Plans The Murphy Door 60 in. x 80 in. FlushThe Secrets Hidden Behind The Murphy Door